Kindergarten Kirchgasse | Müllheim

 

„Der Verfasser platziert den punktförmigen Baukörper südlich auf dem Gelände, sodass zur Kirchgasse ein großzügiger Vorplatz entsteht, der ausreichend Parkflächen und Außenraum bietet. Idealerweise verbindet sich dieser Vorplatz mit dem Freiraum der Kirche. Die östliche Fassade bildet eine Raumkante aus, die jedoch durch eine großzügige Öffnung Sichtbezüge zwischen innen und außen zulässt.

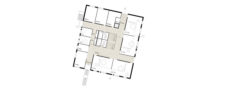
Die klare Grundrissgestaltung wird durch eine ideale Anordnung der Funktionsflächen um eine Halle, die auch als Schleuse dient, unterstrichen. Die Ausrichtung der Räume in Erd- und Obergeschoss sind wohlüberlegt. Im Obergeschoss wird durch die Windradstruktur ein Sichtbezug der Spielflure von innen nach außen möglich und eine natürliche Belichtung hergestellt. Die offenen Spielflure ermöglichen eine optimale Umsetzung des pädagogischen Konzeptes.

...

Die homogen gewählte Fassade mit Holzbekleidung strahlt trotz verschiedener Fenstergrößen eine Ruhe aus. Der südliche Außenbereich bietet vielfältige Möglichkeiten zur Nutzung und fördert somit die Bewegungsmöglichkeiten der Kinder.

...

Insgesamt ermöglicht die wohlüberlegte Platzierung des Baukörpers auf dem Gelände eine größtmögliche optimale Ausnutzung der Frei- und Spielfläche. Der sehr kompakte Baukörper hat ein optimales Flächenverhältnis. Die bauliche Konzeption wird durch die statische Einfachheit und der Möglichkeit zur vorgefertigten Bauweise in ihrer Wirtschaftlichkeit unterstrichen.

Insgesamt stellt die Arbeit aus städtebaulicher, funktionaler, gestalterischer und wirtschaftlicher Sicht eine Bereicherung für den innerstädtischen Bereichs Müllheims dar.”

 


Auszug aus dem Preisgerichtsprotokoll

 


Auftraggeber: Stadt Müllheim

BGF: 1.540 m²

Landschaftarchitektur: Rabe Landschaften

Jury: 05/2016

Ergebnis: 3.Preis

Publiziert in: competitionline

 

Zurück


Warning: mb_eregi_replace(): mbregex search failure in php_mbereg_replace_exec(): undefined bytecode (bug) in system/modules/core/library/Contao/Search.php on line 225
#0 [internal function]: __error(2, 'mb_eregi_replac...', '/homepages/12/d...', 225, Array)
#1 system/modules/core/library/Contao/Search.php(225): mb_eregi_replace('[^[:alnum:]'\\.:...', ' ', 'Kindergarten Ki...')
#2 system/modules/core/classes/FrontendTemplate.php(330): Contao\Search::indexPage(Array)
#3 system/modules/core/classes/FrontendTemplate.php(124): Contao\FrontendTemplate->addToSearchIndex()
#4 system/modules/core/pages/PageRegular.php(190): Contao\FrontendTemplate->output(true)
#5 system/modules/core/controllers/FrontendIndex.php(285): Contao\PageRegular->generate(Object(Contao\PageModel), true)
#6 index.php(20): Contao\FrontendIndex->run()
#7 {main}