Kirchliches Gemeindezentrum | Quickborn

 

Der stadtplanerische Entwurf erfasst drei Teilbereiche - das Gemeindehaus, die Wohnbebauung und die Pastorate - in einem Gesamtkonzept.

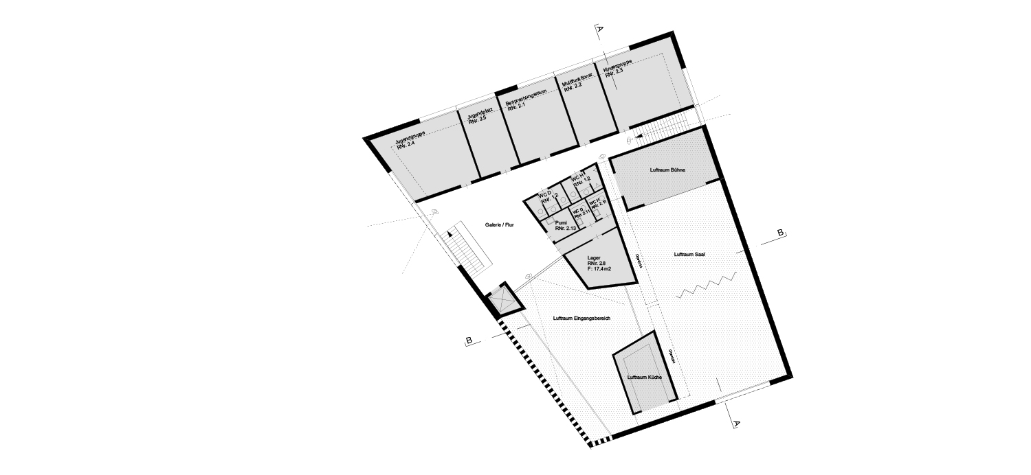
Wohngebäude und Pastorate orientieren sich in Maßstäblichkeit, Gebäudeform und Materialität an der ortstypischen Bebauung und fügen sich in die vorhandenen Stadtstruktur ein. Sie stärken und formen diese, bilden Raumkanten und Straßenräume. Das Gemeindehaus fügt sich durch seine Materialität und Gestalt in den Kontext ein. Ruhig, jedoch selbstbewusst liegt es als flacher Baukörper in respektvollem Abstand nördlich der Marienkirche. Durch seine Form „lehnt“ es sich Richtung Kirche, tritt mit ihr in den Dialog und spannt vor den beiden Gebäuden einen gemeinsamen Raum auf. Die historische Kirche mit ihren Außenbereichen bleibt als eigenständige gut sichtbare Anlage bestehen.

 

Auftraggeber: Ev.-Luth. Kirchengemeinde Quickborn

Architekt: Finner Keiner Architekten

Ergebnis: 3.Preis


BGF: Gemeindehaus 1.000 m², Wohnbebauung 4.000 m²

Landschaftarchitektur: Rabe Landschaften


Publiziert in: competitiononline

 

Zurück


Warning: mb_eregi_replace(): mbregex search failure in php_mbereg_replace_exec(): undefined bytecode (bug) in system/modules/core/library/Contao/Search.php on line 225
#0 [internal function]: __error(2, 'mb_eregi_replac...', '/homepages/12/d...', 225, Array)
#1 system/modules/core/library/Contao/Search.php(225): mb_eregi_replace('[^[:alnum:]'\\.:...', ' ', 'Kirchliches Gem...')
#2 system/modules/core/classes/FrontendTemplate.php(330): Contao\Search::indexPage(Array)
#3 system/modules/core/classes/FrontendTemplate.php(124): Contao\FrontendTemplate->addToSearchIndex()
#4 system/modules/core/pages/PageRegular.php(190): Contao\FrontendTemplate->output(true)
#5 system/modules/core/controllers/FrontendIndex.php(285): Contao\PageRegular->generate(Object(Contao\PageModel), true)
#6 index.php(20): Contao\FrontendIndex->run()
#7 {main}