Kontorhaus Alstertor | Hamburg

 

Das Gebäude „Kontorhaus Alstertor“ liegt in zentraler Innenstadtlage mit unmittelbarem Sichtbezug zur Alster.

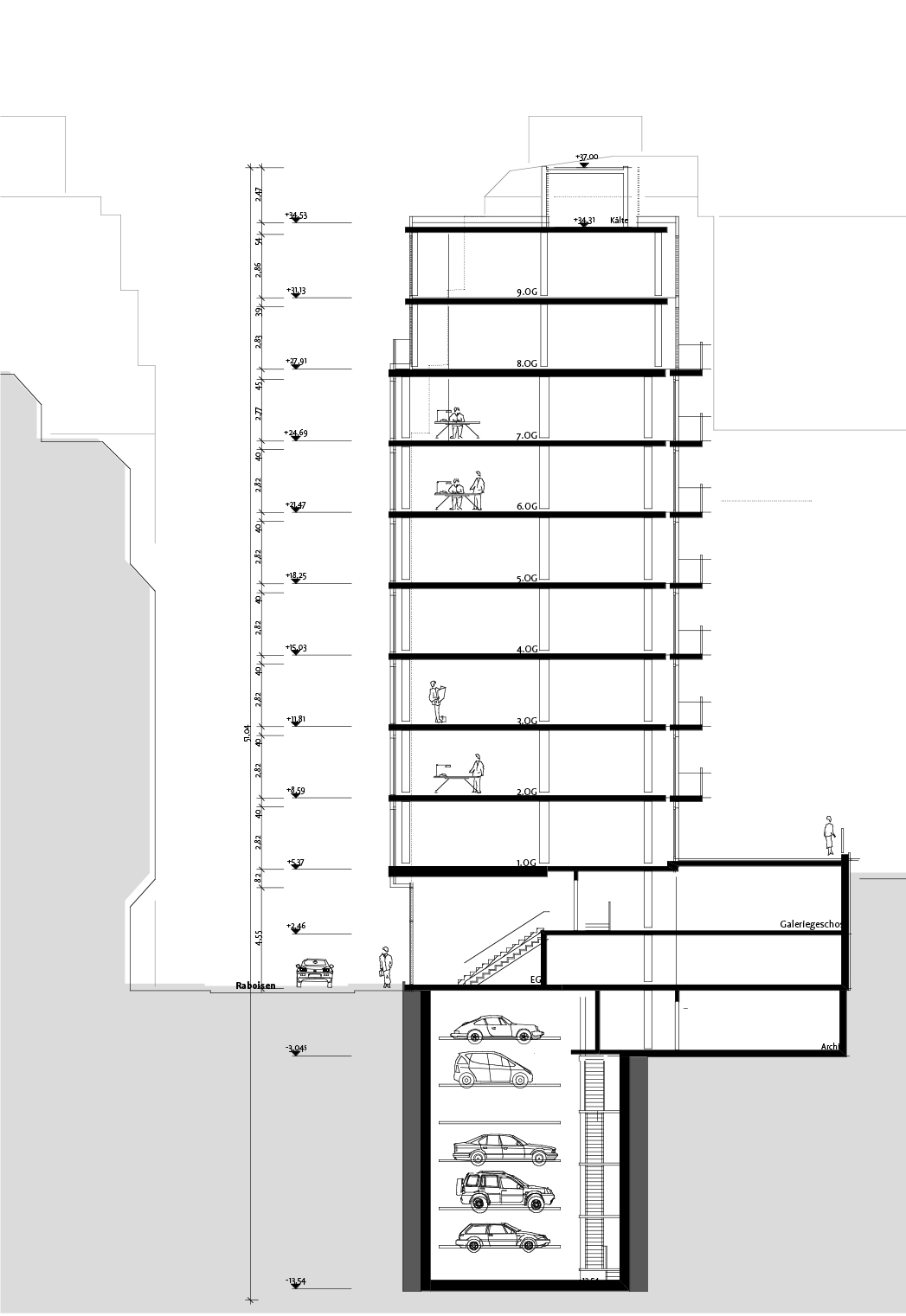
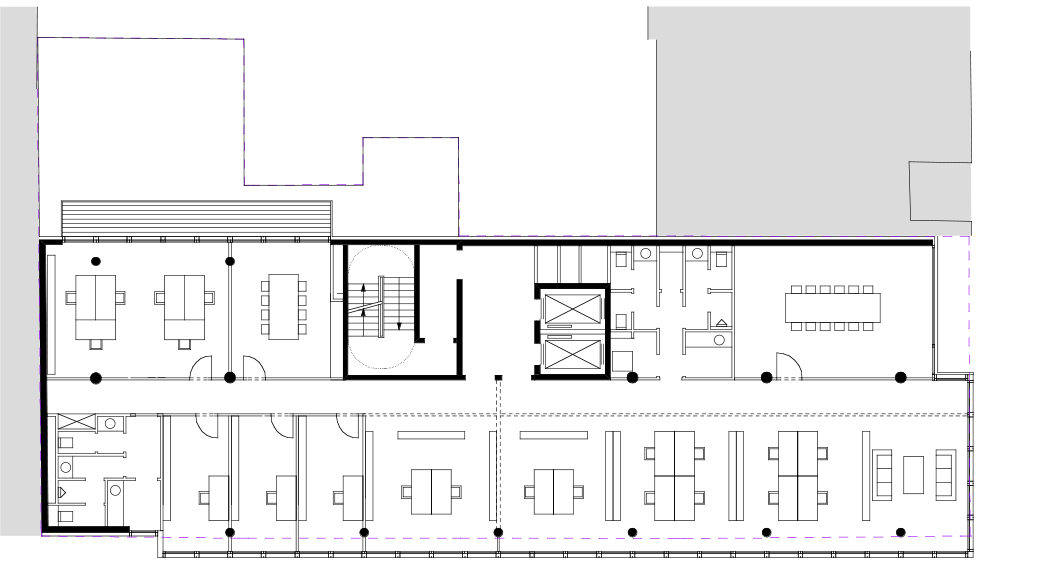
Das 10-geschossige Gebäude bietet Platz für Einzelhandelsnutzung, flexibel nutzbare Büroflächen in den Obergeschossen sowie eine Tiefgarage.

Auskragende und zurückspringende Bauteile gliedern die Kubatur des Gebäudes horizontal und vertikal und fügen es harmonisch in den engen und kleinteiligen städtebaulichen Kontext ein. Das Gebäude vermittelt zwischen dem Maßstab der Europapassage und der umliegenden Bebauung. Die Fassade unterstreicht durch Materialität und Farbe die unterschiedlichen Bauteile. Fein detailliert verleiht sie mit ihrer Helligkeit und Proportion dem Gebäude einen eleganten und zeitlosen Charakter.

 


Auftraggeber: Kontorhaus Alstertor GmbH & Co. KG

Fertigstellung: 2010

BGF: 5.270 m²

Leistung: Projektleitung LPH 1-5

Architekt: Florian Fischötter Architekt GmbH

Auszeichnung: Würdigung BDA-Architekturpreis 2010

Photos: Klaus Frahm

 

Zurück


Warning: mb_eregi_replace(): mbregex search failure in php_mbereg_replace_exec(): undefined bytecode (bug) in system/modules/core/library/Contao/Search.php on line 225
#0 [internal function]: __error(2, 'mb_eregi_replac...', '/homepages/12/d...', 225, Array)
#1 system/modules/core/library/Contao/Search.php(225): mb_eregi_replace('[^[:alnum:]'\\.:...', ' ', 'Kontorhaus Alst...')
#2 system/modules/core/classes/FrontendTemplate.php(330): Contao\Search::indexPage(Array)
#3 system/modules/core/classes/FrontendTemplate.php(124): Contao\FrontendTemplate->addToSearchIndex()
#4 system/modules/core/pages/PageRegular.php(190): Contao\FrontendTemplate->output(true)
#5 system/modules/core/controllers/FrontendIndex.php(285): Contao\PageRegular->generate(Object(Contao\PageModel), true)
#6 index.php(20): Contao\FrontendIndex->run()
#7 {main}