Wippertor I | Sondershausen

 

Das Wohngebiet Wippertor ist eine direkt am historischen Stadtkern gelegene Plattenbausiedlung.

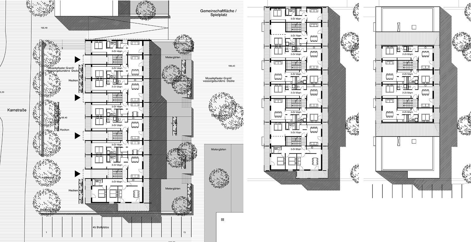
Wesentliches Anliegen des Entwurfes ist es - trotz einer Reduzierung der Wohnflächen um ca. 50 % - ein städtisches Gebiet zu entwickeln.

Durch Verkürzen und Staffelung der Wohnbebauung werden neue Blickbeziehungen geschaffen. Die Bebauung öffnet sich zum Landschaftsraum. Die westliche geschlossene Bebauung schafft den Übergang zur anschließenden Altstadtbebauung.

Die Wohnungen der verbleibenden Plattenbaubebauung werden auf die aktuellen Wohnungsbaustandards angepasst, ohne wesentlichen Eingriff in die Tragstruktur der Gebäude. Eine weitere Schicht vor dem Gebäude schafft einen privaten Freibereich bei Beibehaltung des städtischen Charakters der Bebauung.

 

Entwurf: 2004

 

Zurück


Warning: mb_eregi_replace(): mbregex search failure in php_mbereg_replace_exec(): undefined bytecode (bug) in system/modules/core/library/Contao/Search.php on line 225
#0 [internal function]: __error(2, 'mb_eregi_replac...', '/homepages/12/d...', 225, Array)
#1 system/modules/core/library/Contao/Search.php(225): mb_eregi_replace('[^[:alnum:]'\\.:...', ' ', 'Wippertor I | S...')
#2 system/modules/core/classes/FrontendTemplate.php(330): Contao\Search::indexPage(Array)
#3 system/modules/core/classes/FrontendTemplate.php(124): Contao\FrontendTemplate->addToSearchIndex()
#4 system/modules/core/pages/PageRegular.php(190): Contao\FrontendTemplate->output(true)
#5 system/modules/core/controllers/FrontendIndex.php(285): Contao\PageRegular->generate(Object(Contao\PageModel), true)
#6 index.php(20): Contao\FrontendIndex->run()
#7 {main}